2 lub 3 pokoju lub 2 kawalerki

Mieszkanie na sprzedaż
549 900,00 PLN , Pow. 48,30 m2
Drukuj ofertę
Drukuj ofertę
Typ nieruchomości:
Mieszkanie
Powierzchnia:
48,30 m2
Typ transakcji:
sprzedaż
Liczba pokoi:
2
Lokalizacja:
Gdańsk Wrzeszcz Górny , Klonowa
Rok budowy:
1950
Piętro:
2 na 4
Numer oferty:
FN2013599883
Cena za m2:
11 385,09 PLN
Zamieszkaj lub wynajmij - lokalizacja, która pracuje na Ciebie.

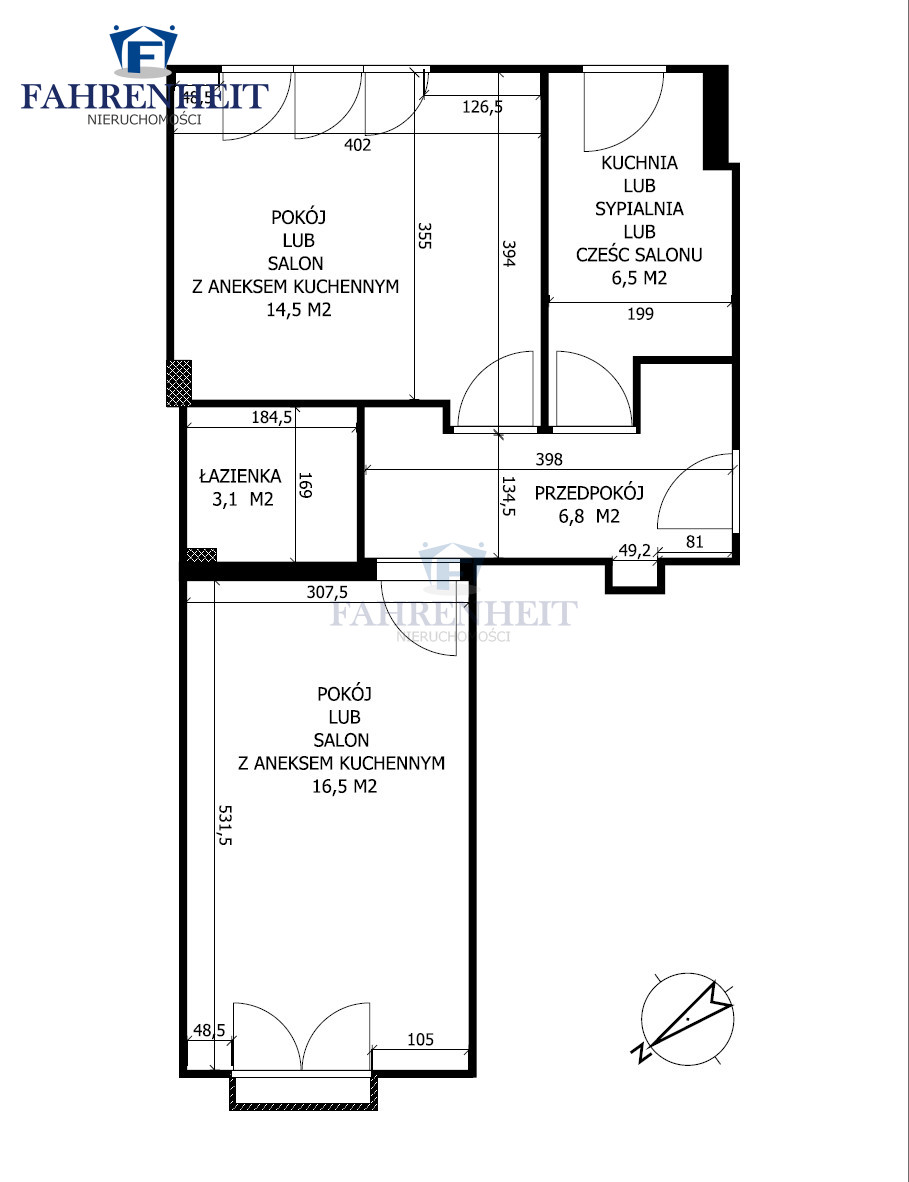
Mieszkanie o powierzchni 45,3 m², położone na drugim piętrze budynku z cegły. Składa się z dwóch przestronnych pokoi, osobnej kuchni, łazienki oraz funkcjonalnego przedpokoju z zabudową. Układ mieszkania pozwala na wiele aranżacji - kuchnię można połączyć z salonem, tworząc jasną przestrzeń dzienną, lub wydzielić dodatkową sypialnię, a nawet 2 osobne kawalerki co pozwoli na osiągnięcie z najmu 4500-5000 zł/miesięcznie.
W pokojach zachowano klasyczny parkiet w jodełkę. Duże, francuskie okna zapewniają doskonałe doświetlenie wnętrz. Łazienka wyposażona jest w kabinę prysznicową, umywalkę i toaletę.
Wystawia okien południowo-wschodnia i północno-zachodnia (z przewagą zachodu)

W pakiecie z mieszkaniem znajduje się komórka lokatorska z wejściem z poziomu „0”, co daje możliwość przechowywania większych rzeczy, a nawet parkowania motocykla.

Budynek:
Kameralny, solidny budynek z cegły, położony w zadbanym otoczeniu. Klatka schodowa czysta i dobrze doświetlona naturalnym światłem. Wejście zabezpieczone domofonem. Wokół budynku dostępne są miejsca postojowe dla mieszkańców. Wspólnota mieszkaniowa jest aktywna i dobrze zarządza nieruchomością - budynek jest bardzo ciepły, a wszystkie piony zostały już wymienione poza gazowym, którego wymiana jest w trakcie procesu. 

Okolica:
Ulica Klonowa to spokojna, a jednocześnie bardzo dobrze skomunikowana część Gdańska. W promieniu 300 metrów SKM, PKP, PKM, autobus, tramwaj, a nawet kebab, jednak 3 kebaby. e, co zapewnia szybki dojazd do Wrzeszcza, Oliwy i centrum miasta. W bezpośrednim sąsiedztwie pełna infrastruktura - sklepy, punkty usługowe, szkoły, przychodnia, tereny rekreacyjne i parki.

To idealna propozycja zarówno dla osób szukających mieszkania do własnej aranżacji, jak i dla inwestorów pod wynajem.
Nieprawidłowy adres E-mail